CAD管道绘制插件下载
2.1 免费最新版- 软件大小:1.12 MB
- 更新日期:2017-04-22
- 软件语言:简体中文
- 软件类别:3D/CAD
- 软件授权:免费软件
- 软件官网:未知
- 适用平台:WinXP, Win7, Win8, Win10, WinAll
- 软件厂商:
软件介绍人气软件相关文章网友评论下载地址
cad管道绘制插件是款简单实用的连续画杆路和管道的cad插件;并且通过这款插件,绘制出来的管道图是非常的专业的,不会出现误差等情况,并且还符合管道的设计规格等;使用这款插件,需要和CAD的软件进行相互的配合,不能单独的进行运行,支持进行弯头的绘制,插入实用的风水管管件等,还支持CAD2004、2008、2016等版本,需要的朋友赶快将软件下载来使用试试吧!

软件功能
管道绘制软件包括绘弯头、插入风水管管件、风水管标注等
软件特色
软件的安装是非常的简单,使用也方便
是款非常值得大家信赖的插件
需要的朋友赶快在河东软件园将软件下载来使用试试吧
安装说明
将本程序安装到任意目录下
然后在cad里面打开工具------加载应用程序-------找到ARX文件然后加载加载。
同时点击内容----添加找到的ARX文件,加载------关闭即可
2004版本已停止更新,请需要的用户自行下载老版本V1.061。
leopipe07.arx支持autocad2007版本。
leopipe10.arx支持AUTOCAD2010-2012版本。
2012版据用户反映部分文字存在乱码问题。
使用方法
支持命令
CLT 修改管道线型及颜色
初始化命令,第一次使用时,请根据需要修改管道外线及中心线线型。如需画不同颜色及线型管道,也可采用此命令修改。
线型如下图所示:

输入对应文字即可。
颜色如下图所示:

颜色对应文字[白0][红1][黄2][绿3][青4][蓝5][品红6]按上下排列。
GD 画管道
本命令为画双线管道命令,所有的弯头、大小头、阀门等功能都可在该命令中一次性实现,一条管路可在命令中一次完成。
第一次输入会显示以下文字:

请根据提示输入“C”修改管道,如需管道参数需做出改变,再次修改即可。或者直接用“CGD”命令修改管道参数。
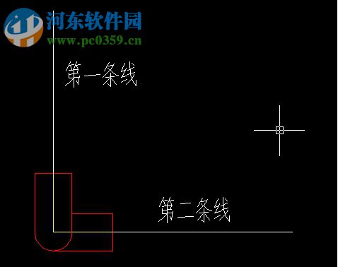
WT 画弯头
直接选择两条直线,即可在直线间插入一个水平弯头。一般为修改管路时使用。
如下图所示:

输入命令后,按提示选择第一条线,再选择第二条线,即可插入弯头。需直接修改弯头参数可用“CGD”命令。
DWT 画向下弯头
直接选择两条直线,即可在直线间插入一个向下的弯头。一般为修改管路时使用。
定义为前一根管道为上部管道,后一根管道为下部管道。反向使用即为插入向上弯头。
如下图所示:

输入命令后,按提示选择第一条线,再选择第二条线,即可插入弯头。需直接修改弯头参数可用“CGD”命令。
CGD 修改管道参数
直接修改管道外径及弯曲半径,按提示输入即可。
DXT 画大小头
输入前后管道外径及长度即可直接在图中插入一个大小头。一般为修改管路时使用。大小头上平下平是相对于初始点而言,如管线自左向右则上平为上部平齐,自右向左则上平为下部平齐。
如下图所示:

FM 画阀门
输入阀门命令后会弹出提示,如下图所示:

其中阀门类型和管径为当前选择的阀门及管径,如非自己需要的,请输入“C”修改。弹出对话框如下:

c
按提示选择阀门即可。
所有阀门文件均在目录leopiperesourceFM下,如阀门样式与所需不符请根据需要自行修改。
修改及新建文件步骤示例如下:(假设要画一个法兰闸阀)
1. 在cad中新建文件,命名为“法兰闸阀”。
2. 在图中绘制对应的法兰闸阀,阀门按接管外径219mm,长度300mm绘制,其他阀门一律按此标准绘制。
3. 在cad中点击新建块,命名为“法兰闸阀”,选择已绘制的阀门,确定!如下图所示:

4. 在块编辑器中选择基点参数,在阀门左边的接点处插入基点,如下图所示:

5. 保存块,并关闭及保存文件,放在对应的FM文件夹下,同时记得清理BAK
文件,保证FM文件夹内只有需要的DWG文件。
6. 阀门样式及种类很多,本插件共支持24个阀门同时输入,但读入CAD文件过多会影响CAD程序执行该命令时的速度,因此请将平时不用的阀门文件放在“leopiperesource阀门备份”文件夹下,或者另外存放。
ZDY 画自定义零部件
自定义文件放置于“leopiperesourceZDY”目录下,新建及修改方式与阀门基本相同。所有零部件为其标准样式,支持X及Y方向等比缩放,可随意绘制任意零部件。如下图所示:
更新说明
修正了双阀串联时绘图的bug。
新增单线图绘制功能。
本次版本为可注册版本,用户注册后可以使用部分新增功能,包括阀门、自定义管件、管道参数输入任意实数。
未注册用户仍然可以使用除以上功能外的所有功能
下载地址
-
CAD管道绘制插件下载 2.1 免费最新版
其他版本下载
- 查看详情wps秀堂软件下载 10.1.0 官方最新版56.96 MB简体中文17-06-19
- 1.51 MB简体中文18-11-14
- 查看详情thinkcell 6.0(数据表绘制)64位 附序列号 官方最新版27.33 MB简体中文16-11-03
- 查看详情CorelDRAW2017最新版下载 中文破解版467 MB多国语言17-04-28
- 查看详情Illustrator CS6 64位 简体中文版 2017 免费版1.75 GB多国语言17-06-21
- 查看详情mapgis10下载(三维地学建模) 破解版8.66 MB简体中文17-12-19
- 查看详情tekla16.0下载附安装教程 16.0 中文破解版2.45 GB简体中文16-09-28
- 查看详情Bodypaint 3D R13下载(附安装教程) 32/64位 中文完整免费版274 MB简体中文17-08-25
- 查看详情舞美酷库软件(附安装使用教程) 1.0 官方版2.43 GB简体中文17-09-07
- 查看详情CAD管道绘制插件下载 2.1 免费最新版1.12 MB简体中文17-04-22
人气软件

sketchup pro 2019中文破解版204 MB
/简体中文
keyshot pro中文破解版755 MB
/简体中文
NI LabView 2018下载(附安装教程)1.7 GB
/简体中文
AutoCAD2018 32/64位中文版下载(附安装教程)2.25 GB
/简体中文
Zemax OpticStudio(光学设计软件)656 MB
/英文
乱刀去教育版(含使用方法)895 KB
/简体中文
solidworks2020中文破解版15.9 GB
/简体中文
mastercam 2017下载(附安装教程)2.16 GB
/多国语言
ptc creo 4.0 m050 64位下载(附安装教程)5.28 GB
/简体中文381 MB
/简体中文
相关文章
网友评论共0条

msteel结构工具箱32位/64位下载 2020.03.15 官方最新版
RealityCapture(3D模型扫描制作软件) 1.0.3 官方版
boson netsim下载(附安装教程) 10.8 免费版
MMD模型修改工具(PMXEditor) 0.2.2.2 最新版
caxa cad电子图板2020破解版 20.0 64位32位 附安装教程








精彩评论