02s701砖砌化粪池标准图集
免费版- 软件大小:8.96 MB
- 更新日期:2016-12-09
- 软件语言:简体中文
- 软件类别:电子阅读
- 软件授权:免费软件
- 软件官网:未知
- 适用平台:WinXP, Win7, Win8, Win10, WinAll
- 软件厂商:
软件介绍人气软件相关文章网友评论下载地址
02s701砖砌化粪池标准图集是一份非常实用的02s701图集;并且它还是国际版,对于工作在排水岗位的朋友是非常的有帮助的,并且软件和02s701图集相比较的话,电子版的图像、文字等会更加的清晰,也非常的容易查看;使用非常的简单,操作也方便,只需要用户下载本站下载文件,然后进行解压即可打开,需要的朋友赶快将02s701砖砌化粪池标准图集下载来使用试试吧!

软件功能
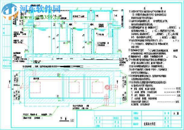
国标图集02S701 砖砌化粪池图集
图集内包含:砖砌化粪池平面图,节点大样详图,尺寸表,盖板平面布置 图(顶面不过汽车)与(顶面可过汽车),预制盖板GB-(1~6)配筋图,现浇钢筋砼底板DB(1~5)配筋图,现浇盖板XGB-1配筋图,现浇盖板XGB-(9~12)钢筋表及材料表等
软件特色
化粪池生物法清理化粪池随着高科技的不断发展和进步,化粪池清理方法也逐渐多起来,除了人工清掏和吸污车处理以外,有些城市也在使用生物化粪剂来清理化粪池。
发展趋向生活中污水对环境污染日益严重,该产品在总结引进国外生活污水处理工艺的基础上,结合科研成果和工程实践,采用高分子复合材料,工厂化生产,是一种高效、节能、质轻、价廉的生活污水处理设备。
它成功替代了传统砖砌和钢混化粪池因渗漏、运行工况不佳而污染地下水质和影响周围建筑物的安全。该产品利用水的重力流,不需任何外来动力和运行费用,节省能源、管理方便。
具有很好的的社会效益、环保效益和经济效益。
停留时间化粪池的停留时间是关系污水处理效果和化粪池容积与造价的重要指标。停留时间过短, 则污水处理效果差;停留时间过长,又增加化粪池容积与造价,且布置困难。
停留时间的取定,应兼顾污水处理效果与建设造价两方面因素因考虑到发酵产生气泡对沉淀要求的层流状态的影响,化粪池流线转折多对沉淀的不利影响,生活污水排放的瞬时变化大对进水流量均匀的影响,化粪池的停留时间应留有余地。
《规范》要求:停留时间取12~24小时。实践证明:停留时间不宜少于12小时,以保证污水处理效果。上元门水厂宿舍区化粪池的停留时间为24小时。
使用方法
02S701砖砌化粪池标准图集本图纸为:02S701砖砌化粪池标准图集,内容包括:1#砖砌化粪池平面图、现浇盖板XGB-1配筋图、现浇盖板XGB-(2~5)钢筋表及材料表等,内容详实,可供参考。
所属分类: 给排水图纸 精选图块、图例集 卫生洁具图块集



立即查看国标砖砌化粪池给排水施工图集本图纸为国标砖砌化粪池给排水施工图集,包括平面图、剖面图、大样图、构件图、配筋图等,内容详实,可供参考。
所属分类: 给排水图纸 给水排水图例 化粪池


立即查看砖砌化粪池平面剖面及大样(总图)本图纸为砖砌化粪池平面剖面大样总图纸,图纸为1号~5号砖砌化粪池平面图,剖面图,及大样,说明及尺寸。可以参考使用!
所属分类: 给排水图纸 给水排水图例 化粪池


立即查看7号砖砌化粪池设计图内容包括:化粪池平面图、顶部圈梁平面图、化粪池盖板平面布置图等图纸,可供参考。
所属分类: 给排水图纸 污水处理图纸 水处理构筑物



立即查看通用图集之排水构筑物砖砌化粪池详图通用图集之排水构筑物砖砌化粪池详图,图纸内含:1号~5号砖砌化粪池平面图,剖面图,配筋图,现浇盖板图,砖砌化粪池结构尺寸表,砖砌化粪池钢筋表,化粪池选用计算方法表


立即查看1-5号砖砌化粪池图集(带配筋)按02S701砖砌化粪池图集绘制,为1~5号砖砌化粪池(有覆土、可过汽车、有地下水)。包括平剖面,圈梁,盖板配置、预制盖板、现浇盖板、底板、钢筋明细表。
所属分类: 给排水图纸 给水排水图例 化粪池



立即查看某市化粪池施工图集重庆市化粪池施工图集,含7类施工图做法,包含覆土、行车、4、5号钢筋混凝土化粪池盖板配筋图、4、5号钢筋混凝土化粪池配筋平面图等等情况的分类做法。可供参考!
所属分类: 建筑图纸 节点详图 建筑构造与详图


立即查看2#砖砌化粪池大样图(上海地区)2#砖砌化粪池大样图(上海地区),图纸内包含:不上车二号化粪池,荷载汽10级二号化粪池。仅供参考!
所属分类: 给排水图纸 给水排水图例 化粪池


立即查看上海某地区常用砖砌化粪池设计施工详图上海地区常用砖砌化粪池设计大样图,分为y有荷载和无荷载两类。图纸内容包括:无荷载(根据化粪池有效容积,分为:3、6.68、9.98、13.5、19.2立方)、有荷载(汽—10,分为:3、6.67、10.5、13.5、19.2立方)。
所属分类: 给排水图纸 给水排水图例 化粪池



立即查看某地10号砖砌化粪池全套设计图纸按02S701砖砌化粪池图集绘制,为10号40立方化粪池(有覆土、可过汽车、有地下水)。包括平剖面,圈梁,盖板配置、预制盖板、现浇盖板、底板、钢筋明细表。
所属分类: 给排水图纸 给水排水图例 化粪池



温馨提示:
本文档为PDF格式文档,因此需确保在阅读之前你已经安装了pdf阅读器,如果尚未安装阅读器,建议下载福昕pdf阅读器或其他PDF阅读器进行安装后阅读。
下载地址
-
02s701砖砌化粪池标准图集 免费版
人气软件

ReadBook阅读器绿色版(附注册码)1.53 MB
/简体中文
Calibre(一站式电子书解决方案)104 MB
/简体中文
高性能mysql第4版pdf70.6 MB
/简体中文
答卷设计软件(SheetDesign)331 KB
/简体中文
secseal公文阅览器35.72 MB
/简体中文53.9 MB
/多国语言107 MB
/简体中文
sep reader(书生公文阅读器)15.8 MB
/简体中文
07fj02人防图集下载4.54 MB
/简体中文
foxit phantompdf下载336.1 MB
/英文
相关文章
网友评论共0条

Sigil(电子书编辑器) 1.2.0 中文版
Balabolka(免费文本语音朗读工具) 2.15.0.744 官方版
名编辑电子杂志大师 2.4.9.28 官方版
PdgCntEditor(PDF目录制作工具) 3.12 绿色版
友益文书 9.5.7 免费版
朗读女(语音朗读) 8.999 官方免费版
adobe acrobat reader dc 2020.006.20034 官方中文版











精彩评论